Дом "Футурис" — это воплощение инновационных технологий и продуманного дизайна. Построенный из энергоэффективных СИП-панелей, он сочетает в себе быстроту возведения, экологичность и высокую теплоизоляцию, делая проживание комфортным в любое время года.
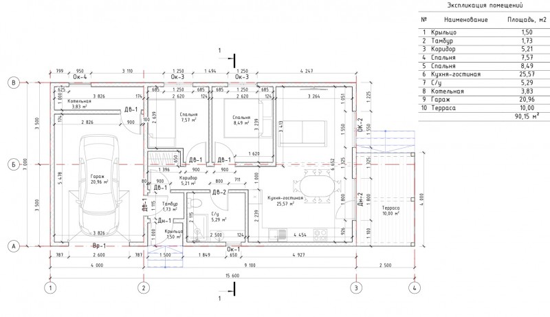
Планировка и интерьер:
Технические особенности:
Преимущества технологии СИП:
Дом "Футурис" — это идеальный выбор для тех, кто ценит современный стиль, практичность и заботу о ресурсах. Его лаконичные формы, продуманная планировка и технологичность делают его не просто жильем, а инвестицией в комфортное будущее.
Стоимость домокомплекта 2 510 000 рублей
Выбор местоположения
Мы свяжемся с Вами в течение дня.