Акварель-01-25 №870

Цена строительства от 0 ₽* * Стоимость не является окончательной
Заявка на консультацию
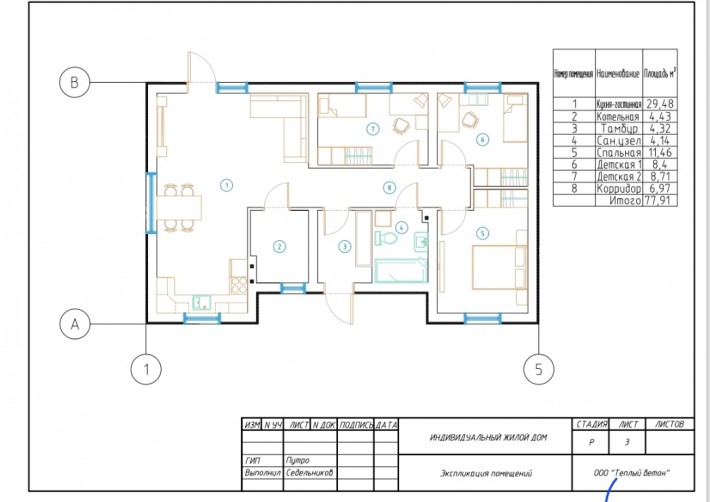
  • Общая площадь 78 м2
  • Длина 13 м
  • Ширина 8 м
  • Материал стен Газобетон/пеноблок
  • Количество этажей 1
  • Подвал Нет
  • Мансарда без мансарды
  • Гараж Нет
  • Терраса Нет
  • Проживание Круглогодичное
  • Количество комнат 4
  • Количество спален 3
  • Количество санузлов 1
  • Вид проекта дом
  • Застройщик ТЁПЛЫЙ БЕТОН
  • Отделка фасада Комбинированная
  • Крыша Вальмовая
  • Можно купить домокомплект Нет
  • Модульный тип строения Нет
Планировки
Описание проекта

Один из самых востребованных проектов для семей из 3–4 человек – "Акварель-01-25". За счет большой гостиной, совмещенной с кухней, этот дом прекрасно подойдет не только для круглогодичного проживания, но и как дача, готовая принять своих постояльцев и летом, и зимой. Материал стен – полистиролбетон, особенность которого – сохранять приятную прохладу в жаркое лето и долго сохранять тепло в морозы.

1. Фундамент - железобетонная плита – самый надежный фундамент, который подходит для любых грунтов!

2. Стены наружные - блок из полистиролбетона (ячеистый бетон). Толщина 300мм – очень тёплые, теплее кирпича в 7 раз, теплее дерева в 2 раза, теплее газобетона и совершенно не боятся намокания! Монтаж блоков осуществляется на "теплый" клей для ячеистых бетонов.

3. Стены внутренние - несущие – блок из ячеистого бетона 300мм, перегородки – блок из ячеистого бетона 100мм с отделкой ГКЛ с двух сторон – отличная шумоизоляция!

4. Фасад – комбинированный – сочетание облицовочного кирпича под рваный камень Брикстоун и имитации бруса, обработанной качественным антисептиком Tikkurila, с сохранением текстуры древесины!

5. Кровля – гибкая черепица Шинглас – срок службы гораздо больше, чем у металлочерепицы, отличный внешний вид и никакого барабана при дожде! Подшивка карнизов и потолка крыльца брашированным деревом с эффектом старения – очень красиво!

6. Утепление кровли – эковата 250мм – 100% заполнение механизированным методом, отсутствие мостиков холода!

7. Окна – пятикамерный профиль VEKA – отличается от своих конкурентов своим высоким качеством и усиленным профилем. На окнах используется надёжная проверенная временем австрийская фурнитура MAKO.

8. Входная дверь – металлическая с терморазрывом Центурион.

9. Отделка стен – во всех комнатах гипсокартон с финишной шпатлевкой, в котельной кафель, в сан узле штукатурка цементно-песчаная.

10. Отделка пола – полусухая стяжка – идеально ровный пол!

11. Электричество – 15кВт, выполнена разводка, временное освещение внутри помещений, смонтированы фасадные светильники!

12. Вода – от центральной скважины в обществе, разводка под землей, на глубине ниже промерзания грунта, выполнена разводка внутри дома.

13. Канализация – железобетонный септик с переливом – отличное решение, откачка не более 1 раза в год.

14. Отопление – в котельной смонтирован газовый котёл Navien 13 кВт и резервный электрический котёл Zota 12кВт, отопление дома выполнено тёплым полом, ни каких приборов отопления на стенах!

Свяжитесь с нами – и мы создадим дом, который идеально подойдёт именно вам!

Вас может заинтересовать
Вас может заинтересовать

Выбор местоположения

Задать вопрос / написать нам

E-mail: domgis@mail.ru

Мы свяжемся с Вами в течение дня.

Тех. поддержка
Предмет обращения:
Тукущая страница

Мы свяжемся с Вами в течение дня.

Уведомление
Предмет обращения:
Тукущая страница
Обратный звонок
Обратный звонок
Выберите ваш город
Пожаловаться

Объявление опубликовано.
Изменения сохранены

Период публикации - бессрочный, при условии подтверждения актуальности каждые 50 дней. Уведомления будут отправляться на Вашу электронную почту.

Выберите причину снятия с публикации

Снятые с публикации объявления не участвуют в поиске и недоступны для подробного просмотра.

Для повторной публикации нажмите «Вернуть в публикацию»