Рейн №423

Цена строительства от 2 859 000 ₽* * Стоимость не является окончательной
Заявка на консультацию
  • Общая площадь 97 м2
  • Длина 8.75 м
  • Ширина 11.125 м
  • Количество этажей 1
  • Подвал Нет
  • Мансарда без мансарды
  • Гараж Нет
  • Терраса Да
  • Проживание Круглогодичное
  • Количество комнат 3
  • Количество спален 2
  • Количество санузлов 1
  • Вид проекта дом
  • Застройщик МАЛОЭТАЖНЫЕ ДОМА
  • Архитектурный стиль Барнхаус
  • Отделка фасада Комбинированная
  • Крыша Двускатная
  • Можно купить домокомплект Нет
  • Модульный тип строения Нет
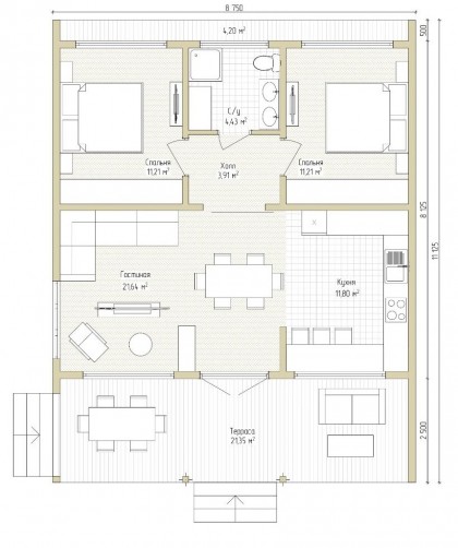
Планировки
Описание проекта

СИП дома в стиле барнхаус можно охарактеризовать словами «просто» и «стильно». В проекте «Рейн» нет каких-то особых архитектурных изысков. Прямоугольный дом, двускатная крыша, никаких выступающих деталей. И можно было бы сказать, что это обычный дом из СИП панелей площадью чуть меньше 100 м2, но вы присмотритесь внимательней.

Вход в дом через стильную террасу, причем посетитель попадает сразу к обеденному столу, который разделяет зону гостиной и кухни. Рядом со входом два панорамных окна и еще одно в зоне гостиной. За кухней-гостиной небольшой холл, из которого можно попасть в санузел и две большие спальни по 11,21 м2. В спальнях также панорамные окна и большое окно под потолком в санузле. Вот и получается, что дом простой, стильный, светлый и удобный.

Выбор местоположения

Задать вопрос / написать нам

E-mail: domgis@mail.ru

Мы свяжемся с Вами в течение дня.

Тех. поддержка
Предмет обращения:
Тукущая страница

Мы свяжемся с Вами в течение дня.

Уведомление
Предмет обращения:
Тукущая страница
Обратный звонок
Обратный звонок
Выберите ваш город
Пожаловаться

Объявление опубликовано.
Изменения сохранены

Период публикации - бессрочный, при условии подтверждения актуальности каждые 50 дней. Уведомления будут отправляться на Вашу электронную почту.

Выберите причину снятия с публикации

Снятые с публикации объявления не участвуют в поиске и недоступны для подробного просмотра.

Для повторной публикации нажмите «Вернуть в публикацию»