Просторный Барнхаус 97 м² – идеальное решение для комфортной жизни семьи.
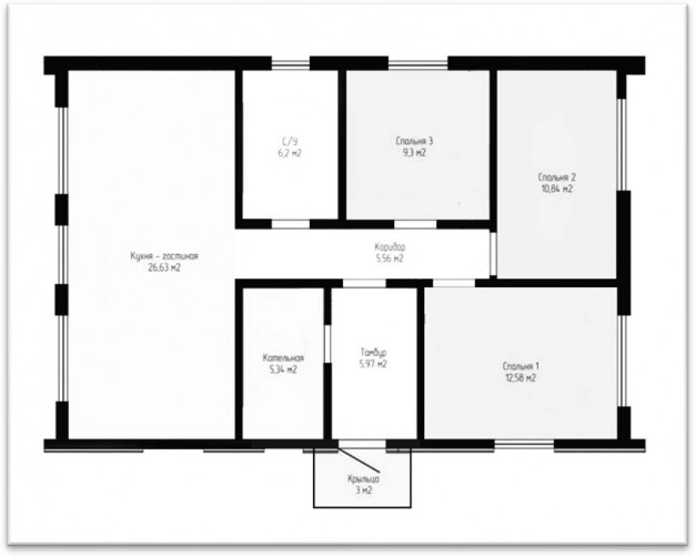
Благодаря продуманной планировке и панорамному остеклению создаётся ощущение простора и свободы. В доме органично сочетаются современный дизайн и функциональность.
Удобная планировка делают этот дом особенно привлекательным для тех, кто ценит уют и практичность. Отличное решение для постоянного проживания.
Комплектации:
ДОМОКОМПЛЕКТ 1 640 000 р.
СТАНДАРТ 4 600 000 р.
КОМФОРТ 5 200 000 р.
КОМФОРТ+ 7 200 000 р.
Выбор местоположения
Мы свяжемся с Вами в течение дня.