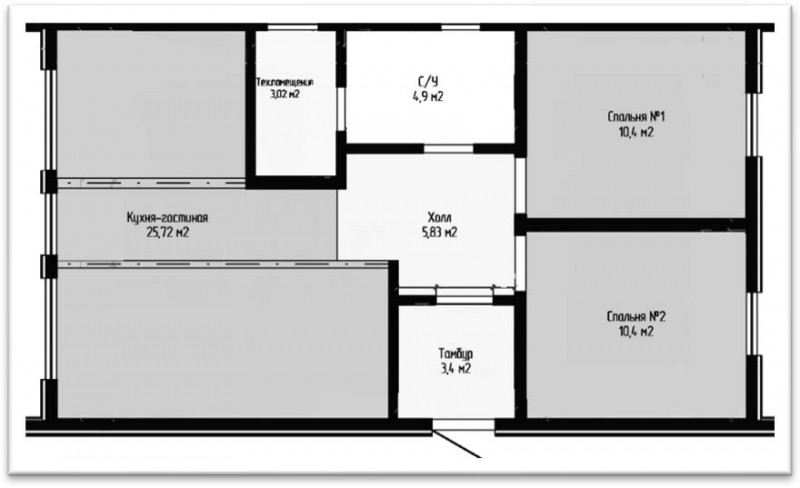
Барнхаус 74 м² – это гармоничное сочетание простора и функциональности.
Этот уютный одноэтажный дом создан для комфортной жизни и отдыха. Продуманная планировка позволяет организовать несколько функциональных зон, сохраняя при этом атмосферу легкости и свободы.
Практичный и стильный, этот Барн станет вашим комфортным домом, где каждый квадратный метр используется максимально эффективно.
Комплектации:
ДОМОКОМПЛЕКТ 1 280 000 р.
СТАНДАРТ 3 500 000 р.
КОМФОРТ 5 000 000 р.
КОМФОРТ+ 6 300 000 р.
Выбор местоположения
Мы свяжемся с Вами в течение дня.