80 НС №195

Цена строительства от 5 200 000 ₽* * Стоимость не является окончательной
Заявка на консультацию
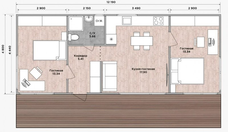
  • Общая площадь 50 м2
  • Длина 12 м
  • Ширина 4.8 м
  • Материал стен Каркасно-панельные
  • Количество этажей 1
  • Подвал Нет
  • Мансарда без мансарды
  • Гараж Нет
  • Терраса Нет
  • Проживание Круглогодичное
  • Количество комнат 3
  • Количество спален 2
  • Количество санузлов 1
  • Вид проекта дом
  • Застройщик CUBIC HOUSE
  • Отделка фасада Металл
  • Крыша Плоская
  • Можно купить домокомплект Нет
  • Модульный тип строения Да
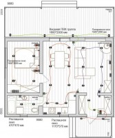
Планировки
Описание проекта

Модульный дом из морского контейнера. Кухня-гостинная и 2 отдельных спальни увеличенной площади. Санузел в керамической плитке. Высота потолков 2,4 м

Дополнительные услуги

  • Свайный винтовой фундамент (под ключ);
  • Установка модуля на вашем участке;
  • Подготовить и выполнить Септик (канализация).
  • Терасса.
  • Доставка/разгрузка/погрузка;
  • Электророзетка на фасаде;
  • Водорозетка на фасаде;
  • Видеонаблюдение.

*Окрас/каширование выполняется по заданию заказчика;

**Покрытие (цвет, рисунок, вид раскладки) по заданию заказчика.

Вас может заинтересовать
Вас может заинтересовать

Выбор местоположения

Задать вопрос / написать нам

E-mail: domgis@mail.ru

Мы свяжемся с Вами в течение дня.

Тех. поддержка
Предмет обращения:
Тукущая страница

Мы свяжемся с Вами в течение дня.

Уведомление
Предмет обращения:
Тукущая страница
Обратный звонок
Обратный звонок
Выберите ваш город
Пожаловаться

Объявление опубликовано.
Изменения сохранены

Период публикации - бессрочный, при условии подтверждения актуальности каждые 50 дней. Уведомления будут отправляться на Вашу электронную почту.

Выберите причину снятия с публикации

Снятые с публикации объявления не участвуют в поиске и недоступны для подробного просмотра.

Для повторной публикации нажмите «Вернуть в публикацию»